Neugestaltung der Fenster einer Schule in Unna
Bestand Bestand Ansicht Planskizze Planskizze
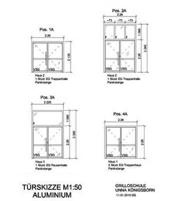
Neugestaltung der Fensteranlage der Grilloschule in Unna