Löwenapotheke Bahnhofstraße 5, Unna – Neugestaltung einer Schaufensteranlage
historische Ansicht Ansicht Ansicht Ansicht Grundriss
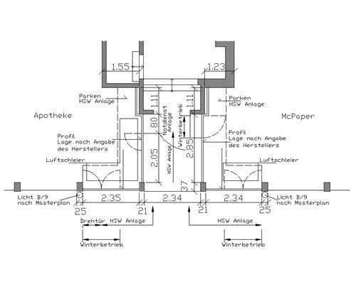
Erneuerung der Eingangssituation in Zusammenarbeit mit dem Denkmalschutzamt